MCS Apartment

Barcelona, Spain
2021

CATEGORY

RESIDENTIAL / COMPLETE RENOVATION

SURFACE

70m2

STATUS

COMPLETED

PHOTOGRAPHY

ROBERTO RUIZ

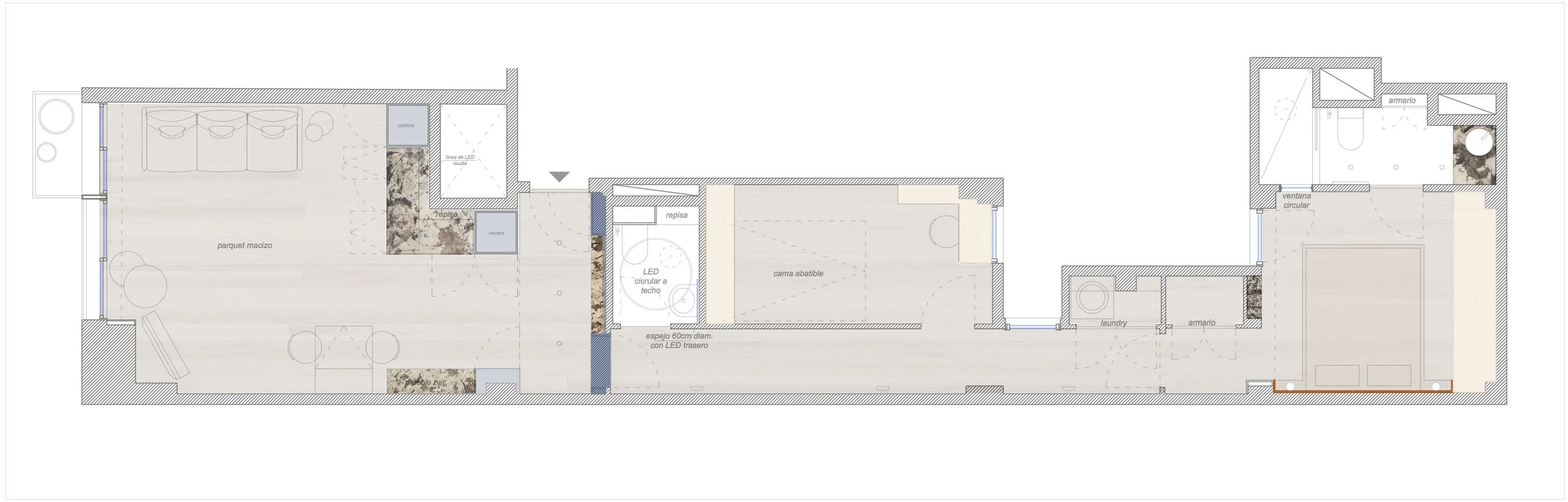
The apartment is located in a building from the early ‘70s in lively Sant Antoni neighbourhood. The client, a German fashion designer of Turkish-Russian origins was looking for a stylish, streamlined two bedrooms apartment as his main residence, with a special attention to natural materials that do not gather dust.

The customer wish was list to maximize light and the use of sophisticated, yet “real” palette of materials like metal, timber, stone.

For technical matters electrical and water installations had to be maintained, as far as possible. The apartment had a very poorly distributed living area that created an uncomfortable kitchen corner that narrowed and darkened spaces. The project had to revert this situation without changing the existing partitions.

Client has also an extent collection of art that had to be displayed within the property.

Copia di Plan 2 copia.jpg

The project started making new sense of the living area.

For this purpose the architects envisioned three units: on the side of the entrance a blue-black storage unit separated the day area from the night area, while dramatically creating a backdrop to the new central piece of the project: the kitchen and bar area. Clad in hand-brushed aluminium panels, they form two elements in conversation, that wrap around existing pillars and installation, regularizing shapes.

Their material was used as by expressed wish of the client that wanted a metallic finish for the kitchen. The brushed aluminium panels softly reflect the light within the space. The client looked for a compact kitchen that did not look as one and for minimal use.

 The blue-black entrance unit creates a very dark background for the whole living area, making the space deeper and disguising the entrance. To enhance the contrast with the dark blue lacquered surfaces, the carved unit has a mirror strip reflecting the large living room windows.

The living area has natural oak floors, as well as the rest of the apartment.

 
Storage units sections

Storage units sections

temp image.png
 
DSC_8147 2.jpg
 
DSC_8199 2.jpg
 

The whole living room reflects client’s interest in art and design: furnished with pieces like the cognac leather Costura sofa by Stua, crowned by two prints by Ronan Bouroullec and sided by Slit side tables by Hay in brass, white and chrome.

The classic Atollo lamp by Oluce, a Cesta lamp by Santa & Cole in its metallic version, or the Carrie lamp by Menu light the room, along with hidden LED lines.

A colourful and monumental painting by Albert Madaula, presides the room.

A small, foldable table for the dining corner is bespoke and made with the same black-blue lacquered panels and marble as the entrance block, sided by a vintage chair, design of Óscar Tusquets, Catalan artist and designer.

 
 
DSC_8059.jpg

“I realized from the first contact that it was the perfect choice. Their professionalism started with the first email to the first budget and site visit. I felt throughout the entire process that they go the extra mile to get the best result. They are truly exceptional to lead holistically the design and refurbishment process and on top give you full visibility through the entire time.
Communication was exceptional during those months and I felt that Andrea and Matteo were truly dedicated to get a superb final result.

Looking back, refurbishment can be quite stressful but it was just the opposite. We had a wonderful time and I enjoyed working with them very much. An incredible final result, I ‘d be thrilled to work with CaSA again for a future project.”

— Urun Gursu

Passed the blue door, through the two-coloured corridor lit by Three Mirbi appliques by Wever and Ducrè  courtesy bathroom welcomes the guests and service the guest bedroom.

This small bathroom did not allow a proper shower, so it has been transformed in a shower-room. It features niches, and a custom-made ring of light mounted on the celling around the shower faucet and a micro ribbed glass door.

 

The bespoke desk and shelves in the studio, sided by a vintage Dafne Chair by Gastone rionaldi for Thema, 1979.

 

The studio room can be used everyday to work or as a reading room area and stores the artworks of the client’s collection. The room features a made to measure desk (that features vintage Dafne foldable chairs by Thema, 1979), sided by shelves.

Its vertically grooved, beige lacquered storage unit that hides a double foldaway bed that turns it into a guest bedroom.

In the hall, integrated within the wall is a small laundry and cleaning closet.

In this room, two arworks by Coté Escrivá.

 

The foldaway bed hidden in the lacquered storage unit.

The suite has a quite simple, made to measure bed in walnut, designed to integrate two small side tables, a bedhead with dimmable Mirbi lights by Wever and Ducrè.

The same walnut is used to create a small unit in an existing niche, topped in Tourmaline Sky granite. Two large, grooved and lacquered sliding doors hide the capacious wardrobe.

 The same stone is used to embellish the suite bathroom, as a precious countertop under an arched angular mirror. The ribbed glass partition hides the masonry bathtub that has a circular window in the same glass, for natural light.

The same stone is used to embellish the suite bathroom, as a precious countertop under an arched angular mirror.

The ribbed glass partition hides the masonry bathtub that has a circular window in the same glass, for natural light. The white bathroom tiles also have a geometric, subtly ribbed texture.

DSC_8574.jpg
 
Copia di baños color.jpg
 

In several rooms, rails have been mounted to change the artworks on walls without damaging them and enjoy the owner’s art collection.

In the apartment are displayed artworks by Albert Madaula, Coté Escrivá, Popcaribe, Ricardo Fumanal y Romina Ressia, among others.

 

DSC_8589.jpg
DSC_8536.jpg

If you would like to have more information about this project or to discuss a collaboration with us, get in touch at info@colomboarchitecture.com